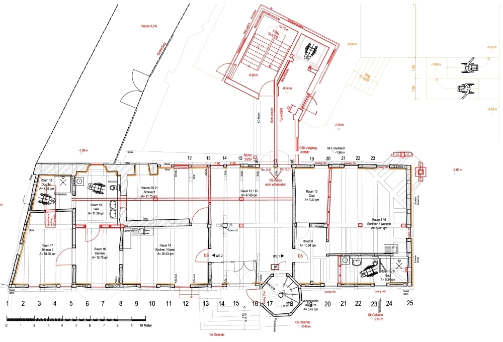
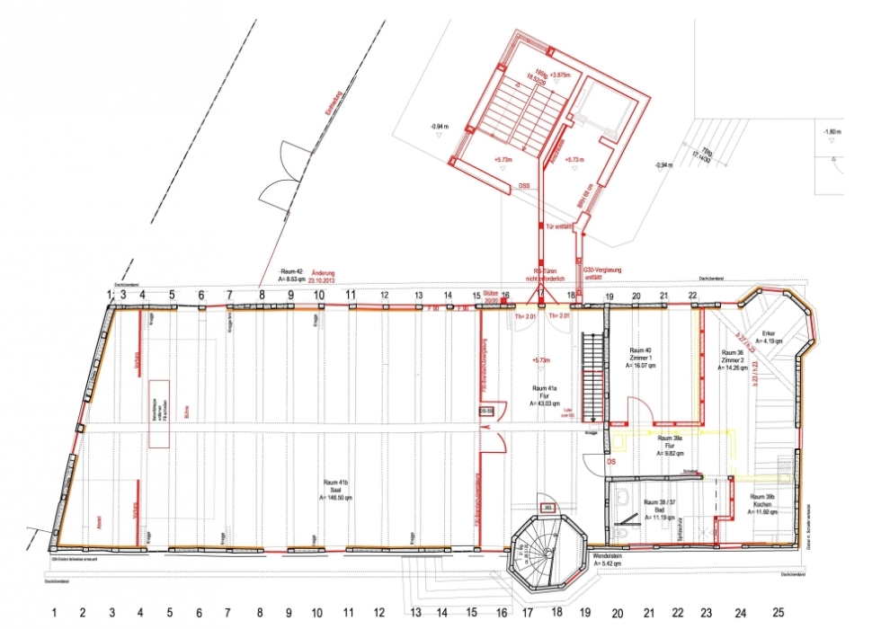
Denkmalgerechte, ökologische Sanierung
In Zusammenarbeit mit der Stadt Osterwieck, dem Ministerium für Landesentwicklung und Verkehr Sachsen-Anhalt, der Deutschen Bundesstiftung Umwelt sowie der BauBeCon Sanierungsträger GmbH, wurde als Modellobjekt für eine energieeffiziente Ressourcen schonende Sanierung, der aus dem 16. Jahrhundert stammende Adelshof "Bunter Hof" in der Rössingstraße 5 in Osterwieck ausgewählt. Das vorbereitete Nutzungskonzept orientiert sich an den öffentlichen Belangen der Stadt und des benachbarten Fallstein-Gymnasiums. Die Schüler des integrativen Gymnasiums, teilweise mit körperlichen Behinderungen, nehmen täglich sehr lange Fahrzeiten in Kauf. Eine Entlastung und Verbesserung der Schulsituation sollen vier barrierefreie Wohneinheiten im Bunten Hof schaffen, in denen acht Schüler leben werden. Die öffentlichen Belange der Stadt werden mit Nutzung des ehemaligen "Rittersaales" im 2. Oberstock als Schulungsraum und Gruppenarbeitsraum und der Unterbringung eines Teils der Leseräume der Stadtbibliothek im 1. Oberstock integriert. Die integrative Planung ist der erste Arbeitsschritt der Sanierung. Diese bildet die Analyse des Schadens des Gefüges und die Konzeption einer Substanz sowie Ressourcen schonenden Sanierung. Zunächst stellt der Holzschutzgutachter die Schädigung des Holzes in Tiefe und Breite fest, Restquerschnitte der Hölzer und dessen Tragfähigkeit werden vom Statiker bestimmt, die Sanierungsumsetzung wird gemeinsam mit dem Planer und der Bauforschung diskutiert. Die Fachwerkkonstruktion entlang der Nordfassade der oberen Stockwerke – ein stockwerksweiser Abbund mit Ständern, Riegeln, Brüstungsplatten, Schwell und Rähm - wurde als Sicherungsmaßnahme und erstes Ergebnis der integrativen Planung – ertüchtigt. In Abstimmung mit den Denkmalfachbehörden wurden die Ständer und der Schwellkranz des durch Umbaumaßnahmen im 18. Jahrhundert geschädigten Wendelsteins wieder instand gesetzt. Die Sicherungen beinhalteten Maßnahmen des konstruktiven Holzschutzes, wie z. B. Abtropfkanten oberhalb des Schwellkranzes und Brüstungsgesimses, behutsame Instandsetzungen durch Ausvieren, Anschuhen und Aufbohlen der Schadensbereiche am Ständer und Riegel sowie Aussetzungen im Bereich der Gesimsbalken.
Die Ertüchtigung der Südfassade erfolgte ab März 2013 mit der Kartierung der Schäden. In einem Seminar
erfolgte schließlich die handwerkliche Ertüchtigung. Einen der ersten Arbeitsschritte bildete das Ergänzen
fehlender Fachwerkdetails, wie der Knaggen im Unterstock; der profilierten Gesimsbohle unterhalb der Traufe,
und die Schließung der Rückbaumaßnahmen von 2009 (2 Gebinde umfassend). Zunächst wurde in diesem Abschnitt
eine Korrektur der Schwellverformung vorgenommen und anschließend ein zweites Schwell auf der
Rauminnenseite eingezogen. Der fehlende Ständer wurde in lotrechter Achse (Zapfenverbindung mit neuem
Schwell) und zwei Riegel wurden je seitlich des Ständers eingezogen. Die Verlagerung der Last auf die neu
eingezogene Schwelle erfolgte mit einem hinter dem Ständer eingezogenen Stempel und dessen Befestigung im
neuen Schwellholz. Zwei Gebinde weiter östlich wurde die bauzeitliche Strebe - durch den Einbau einer
Fensteröffnung zurückgeschnitten - wieder ergänzt.
Am Ostgiebel wurden einzelne Randbalken, geschädigt durch Hausbockbefall, abgebeilt und anschließend
aufgebohlt, Zapfenlöcher älterer Konstruktionen ausgesetzt und im Dachbereich der mittige Ständer des
16. Jahrhunderts durch seitlich Zangen und auf der Vorderseite durch Bohlen verstärkt. Zapfenlöcher des
ehemals einbindenden bauzeitlichen Fachwerkabbundes im Randbalken des Giebeldreieckes wurde mit einem
Kantholz in zwei Abschnitten ausgesetzt.






















